VENDITA APPARTAMENTO - REDI - CALZABIGI - MAMELI LIVORNO
Redi - Calzabigi - Mameli
codice riferimento: Rif.4475
Condividi
Condividi
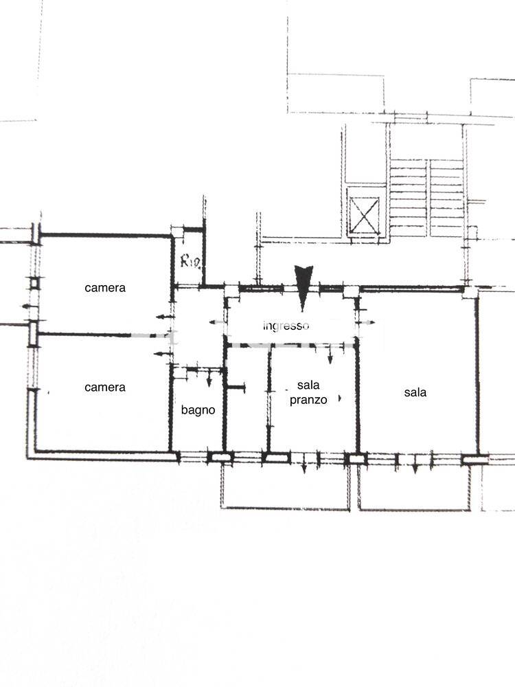
Rif. 4475 PAGANUCCI In ottima posizione, in signorile condominio dotato di ascensore, proponiamo elegante appartamento con affacci sul verde. L'immobile si presenta molto luminoso e ben distribuito, composto da un ingresso, spaziosa Sala con ampio balcone, cucinotto con finestra sala pranzo con altro balcone e cucinotto a vista con finestra, disimpegno, 2 CAMERE MATRIMONIALI di cui una con balcone, bagno con finestra e ripostiglio (reale possibilità di realizzare secondo bagno). Spazio comune custodito con accesso da passo carrabile per posti moto e bici. Il riscaldamento è centralizzato con valvole termo statiche. (classe F) La richiesta è di euro 238.000
1 bagno, 2 camere, Ascensore, Balconi, Cucina, Posto moto e bici, Sala, Termocentrale.
| Piano: | 3/6 |
| Superficie: | 100 mq |
| Classe: | G |
| Condominio: | € 120,00 |
| Prezzo: | € 238.000,00 |
Torna alla ricerca
Richiedi informazioni