VENDITA INDIPENDENTI - PORTA A TERRA LIVORNO

                                                         
Porta a Terra
codice riferimento: Rif.4500

  Condividi   Condividi

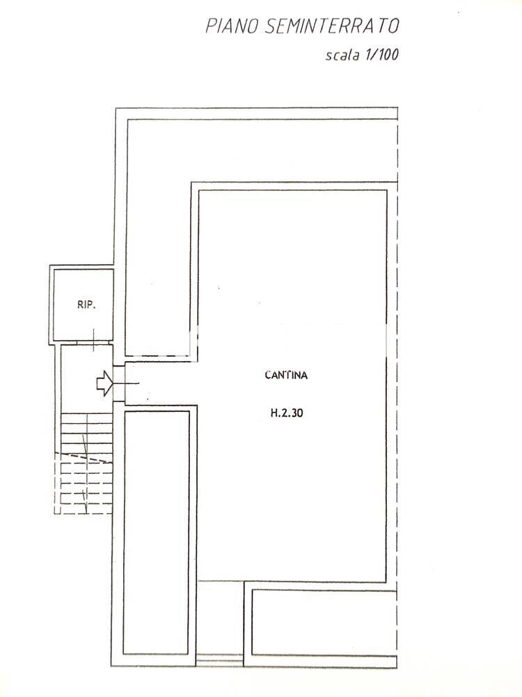
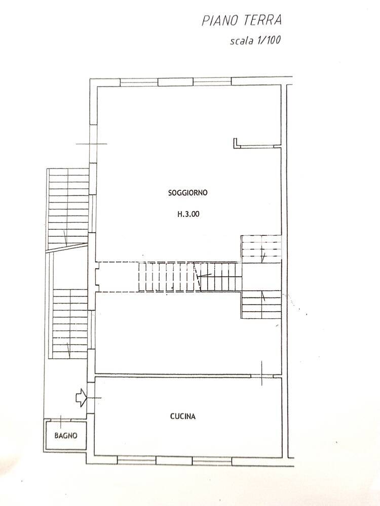
Rif. 4500 PORTA A TERRA - VILLA CON PARCO - In posizione tranquilla, immersa nel verde, proponiamo porzione di circa 300 mq di signorile VILLA d'epoca bifamiliare. L'immobile è disposto su più livelli, servito da PARCO esclusivo di circa 3.000 mq con possibilità di realizzare una piscina. Al piano terreno una spaziosa zona giorno con due saloni con camino ed affacci sul verde, una grande cucina abitabile con accesso a giardino ed un bagno di sevizio. Al primo piano troviamo 2 Camere matrimoniali, 2 bagni con finestra, balcone e 2 ripostigli. Mansarda di circa 60 mq attualmente adibita a camera/studio con accesso a balcone. Taverna di circa 50 mq. Reale possibilità di frazionare in 2 appartamenti indipendenti, grazie anche alla presenza di una scala esterna che accede al primo piano. Il riscaldamento è autonomo. (classe G) La richiesta è di euro 520.000 trattabili. (Possibilità di acquisto di una nuda proprietà di un immobile nelle vicinanze)




2 o più bagni, 3 o più camere, Balconi, Cantina, Cucina, Giardino, Posto auto, Salone doppio, Termoautonomo.
 
 
Piano: terra/1
Superficie: 300 mq
Classe: G
Prezzo: € 520.000,00


Torna alla ricerca Richiedi informazioni